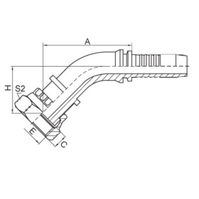
45° 美制ORFS内螺纹平面

|
代号 |
螺纹 E |
软管 |
尺寸 |
||||
|
公称内径 |
标号 |
A |
H |
C |
S2 |
||
|
24241-04-04 |
9/16"X18 |
6 |
4 |
45.5 |
23.4 |
8.5 |
19 |
|
24241-04-05 |
9/16"X18 |
8 |
5 |
47.6 |
24.3 |
8.5 |
19 |
|
24241-04-06 |
9/16"X18 |
10 |
6 |
49.2 |
24.9 |
8.5 |
19 |
|
24241-06-06 |
11/16"X16 |
10 |
6 |
51.7 |
27.4 |
10 |
22 |
|
24241-06-08 |
11/16"X16 |
12 |
8 |
63.9 |
29 |
10 |
22 |
|
24241-08-08 |
13/16"X16 |
12 |
8 |
65.3 |
30.4 |
11 |
27 |
|
24241-08-10 |
13/16"X16 |
16 |
10 |
76.5 |
31.7 |
11 |
27 |
|
24241-10-10 |
1"X14 |
16 |
10 |
79.7 |
34.9 |
13.5 |
30 |
|
24241-10-12 |
1"X14 |
20 |
12 |
86.5 |
38.4 |
13.5 |
30 |
|
24241-12-12 |
1.3/16"X12 |
20 |
12 |
87.6 |
39.5 |
15 |
36 |
|
24241-12-16 |
1.3/16"X12 |
25 |
16 |
95.3 |
41 |
15 |
36 |
|
24241-16-20 |
1.7/16"X12 |
32 |
20 |
103.8 |
46.1 |
14.8 |
41 |
|
24241-06-04T |
11/16"X16 |
6 |
4 |
39.5 |
17.4 |
10 |
22 |
|
24241-06-05T |
11/16"X16 |
8 |
5 |
42.3 |
19 |
10 |
22 |
|
24241-08-06T |
13/16"X16 |
10 |
6 |
44.6 |
20.3 |
11 |
27 |
|
24241-10-08T |
1"X14 |
12 |
8 |
58.2 |
23.3 |
13.5 |
30 |
|
24241-12-08T |
1.3/16"X12 |
12 |
8 |
58.2 |
23.3 |
15 |
36 |
|
24241-12-10T |
1.3/16"X12 |
16 |
10 |
69.4 |
24.6 |
15 |
36 |
|
24241-16-12T |
1.7/16"X12 |
20 |
12 |
74 |
29.6 |
14.8 |
41 |
|
24241-16-14T |
1.7/16"X12 |
22 |
14 |
78.7 |
28.5 |
14.8 |
41 |
|
24241-16-16T |
1.7/16"X12 |
25 |
16 |
84.1 |
29.7 |
14.8 |
41 |
|
24241-20-16T |
1.11/16"X12 |
25 |
16 |
80.9 |
32.7 |
15 |
50 |
|
24241-24-20T |
2"X12 |
32 |
20 |
94.5 |
33.8 |
14.8 |
60 |
|
24241-24-24T |
2"X12 |
40 |
24 |
108.5 |
37.7 |
14.8 |
60 |
|
24241-20-20W |
1.11/16"X12 |
32 |
20 |
111.2 |
49 |
15 |
50 |
|
24241-20-24W |
1.11/16"X12 |
40 |
24 |
123.6 |
52.9 |
15 |
50 |
|
注:1.表中代号用于编织软管。 2.如需用于缠绕软管代号改为 24242-XX-XX. |
|||||||